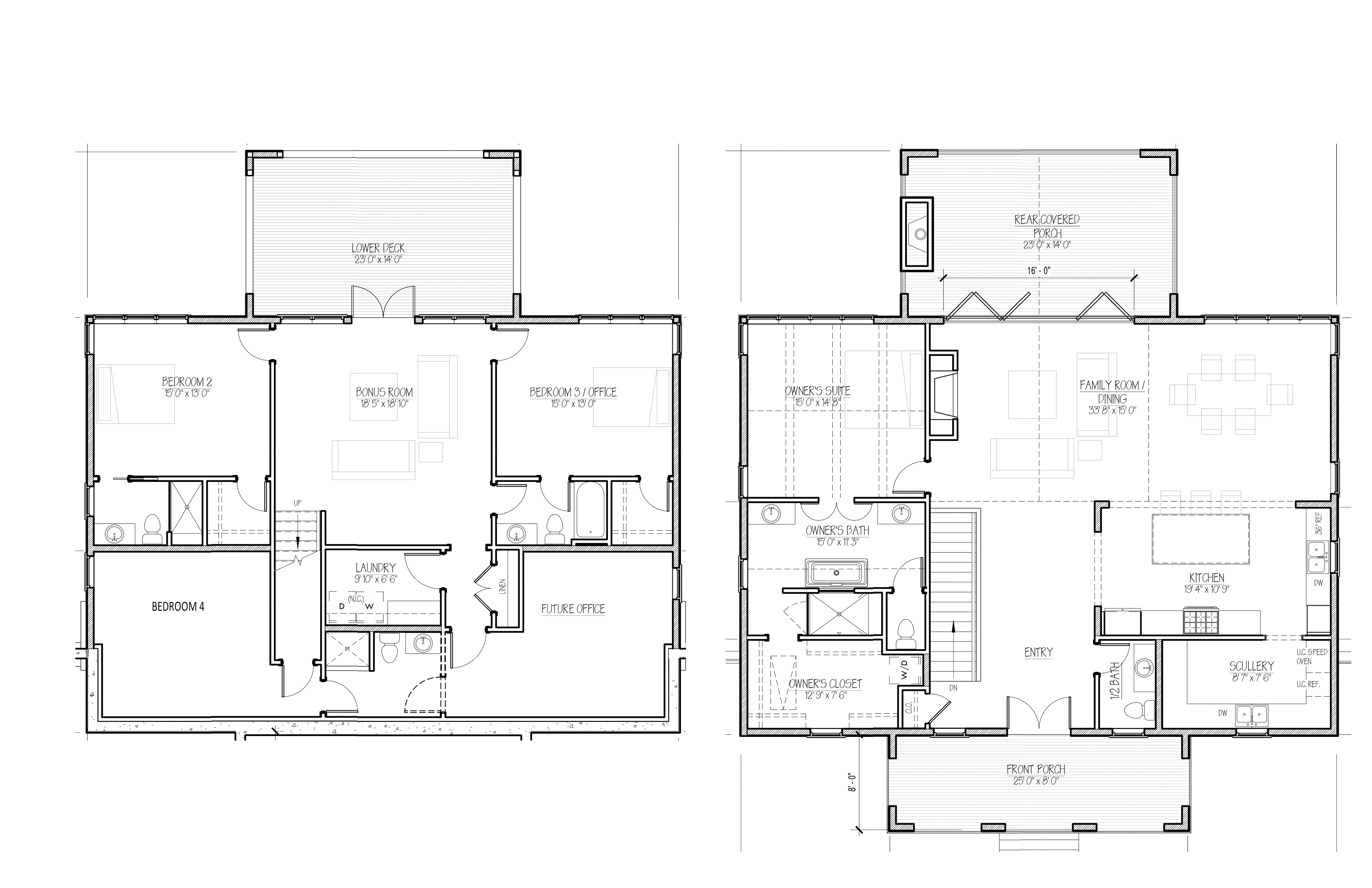
Perched high on the Lupo Loop ridgeline, this Phillip Clark Custom Homes masterpiece captures sweeping sunset views and effortless indoor-outdoor living. The open floor plan showcases vaulted ceilings in the living room and on the spacious back porch, while the main-level primary suite offers convenience and comfort. An expansive front porch welcomes you home, and the terrace level provides guest bedrooms, a second living area, and an additional back porch designed for year-round entertaining. Just a short distance from shops and a plethora of wellness amenities, this home is turn key and ready for you to call home. Immediate access to over 20 miles of soft surfaced nature trails right outside your front door.
























