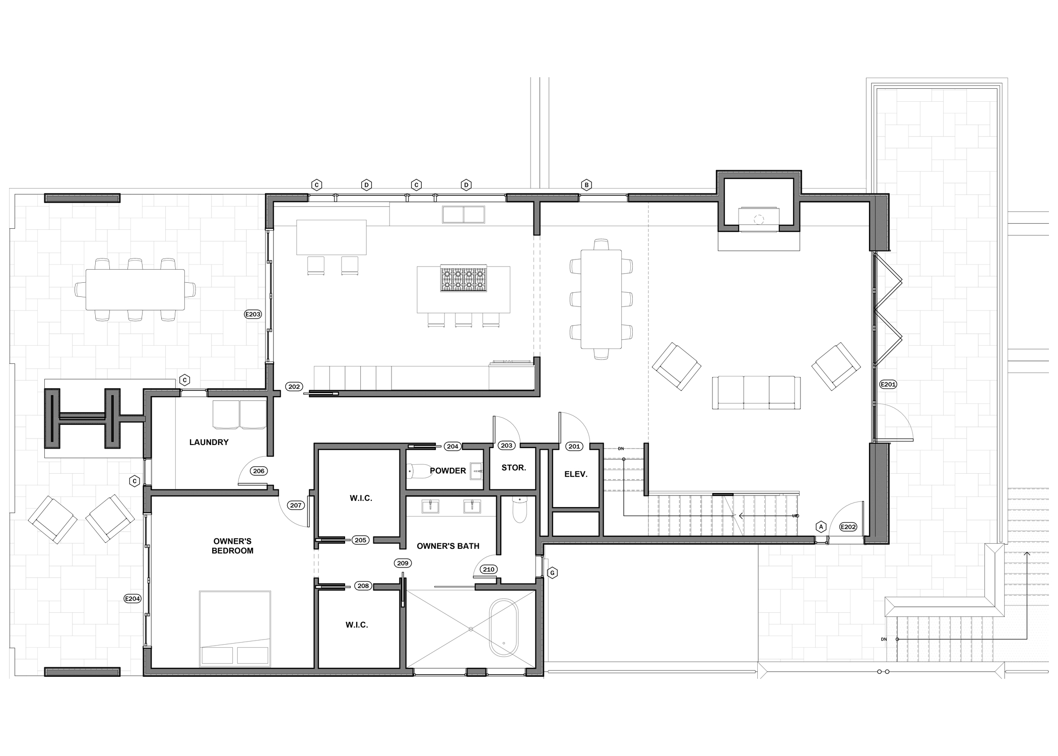
Welcome to 1171 Lupo, a stunning new construction luxury home in the beautiful Serenbe community, built by Vincent Longo Custom Builders. This transitional-style residence is ready for you to move in and offers the perfect blend of luxury and nature. Situated high atop Lupo Loop, one of the highest points in Serenbe, this home provides remarkable treetop views. A welcoming stone wall leads you to the front porch, featuring a prominent steel and glass pivot entry door and a private garden with a trellis, ideal for relaxation. As you enter, you'll appreciate the expansive main room with soaring 22-foot ceilings, highlighted by an oversized wood-burning fireplace complete with a hand crafted marble mantle and hand-plastered arched chimney chase. The space is filled with natural light from large windows and an accordion Pella-clad door that opens to an oversized front porch, where you can enjoy breathtaking sunsets while relaxing under gas lanterns.
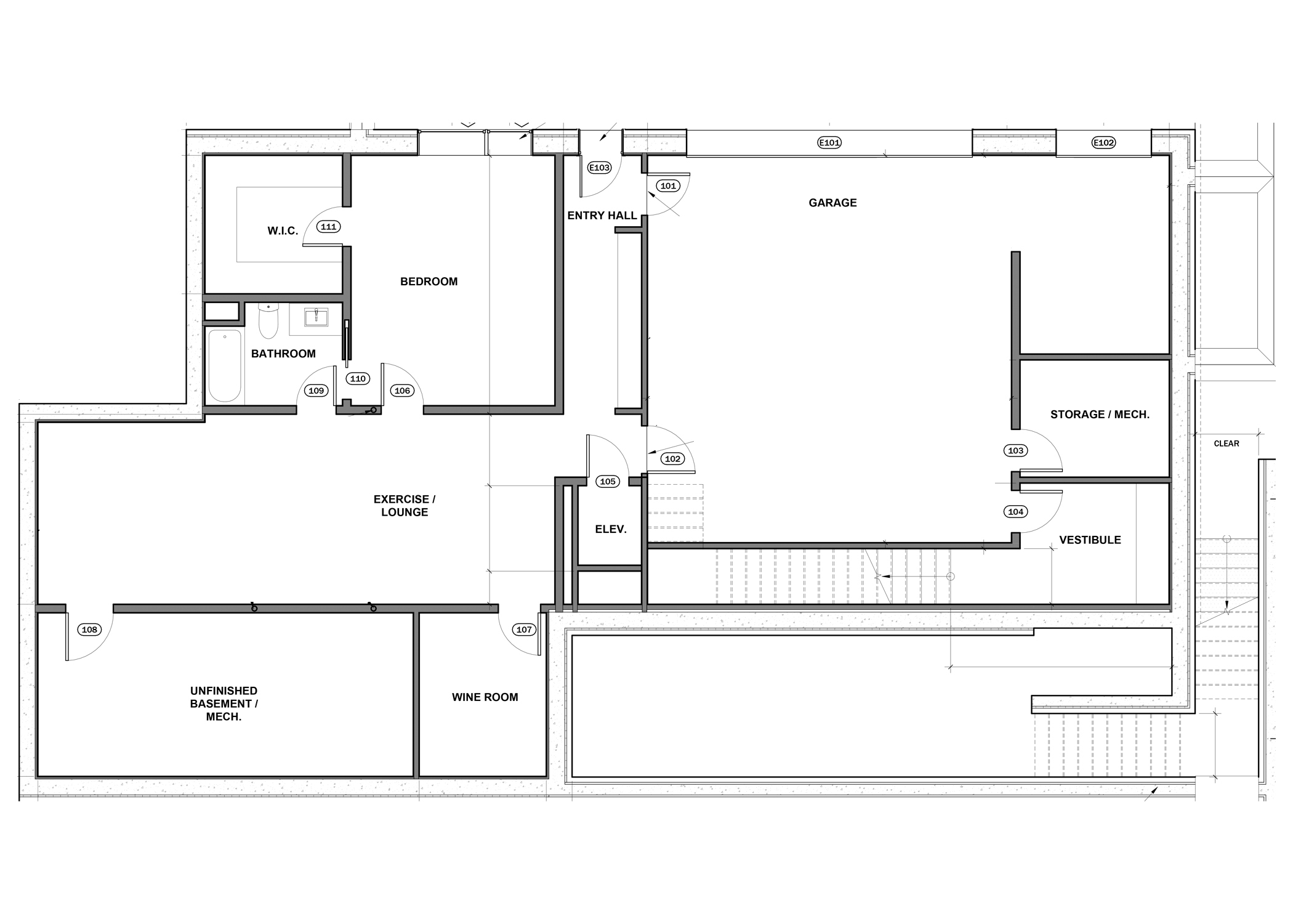
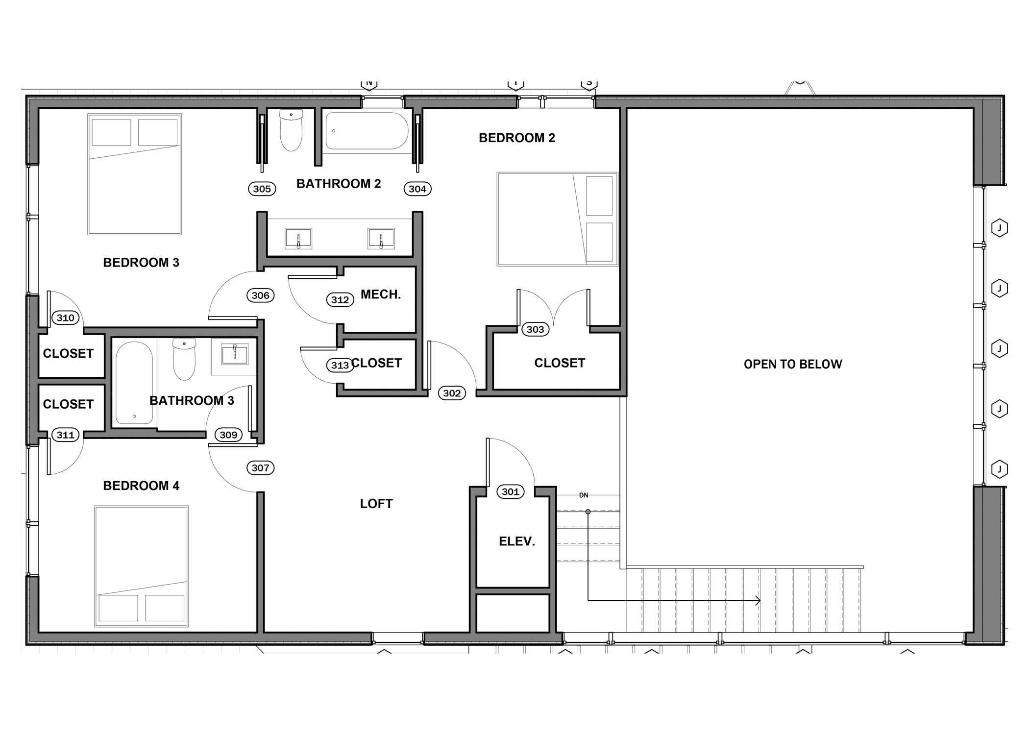
The interior features elegant white oak wide plank floors and designer paint selections throughout. The chef's kitchen showcases custom oak cabinetry by Bell Custom Cabinets, elegant marble countertops, and a special French La Cornue oversized range beneath a uniquely designed hood. This gourmet kitchen is well-equipped with a panel-ready appliance package, a spacious island with two full-size sinks, and brass Delta Brizo premium fixtures. For convenience, the home includes a luxury private elevator servicing all levels, a two-car garage at the terrace level, and a full bedroom suite with en-suite bathroom.The entertainment space on this level features a theater room, complete with a full bar, refrigerator, custom cabinetry, microwave, and sink. Don’t miss the impressive custom steel and glass door at the wine room with vintage brass-colored wine racks and custom detailing. The primary suite is located on the main level and includes a private sitting porch with a fireplace. This suite features two closets with custom cabinetry and a luxurious bath adorned with marble tile, custom cabinetry, and a wet room shower experience with a soaking tub. Upstairs, you'll find a cozy loft area, perfect for a study or lounge, along with three additional bedrooms featuring custom closets and elegantly finished bathrooms. The terrace level provides not only a two-car garage equipped with two Tesla chargers but also extra space suitable for a golf cart or hobby area with a overhead door. The home is powered by a GEOTHERMAL HVAC system and features advanced electrical and media systems.
Outdoor living is a highlight of this home, as large sliding doors open to a ground-level rear porch that flows into a serene, wooded backyard. The outdoor space is designed for entertaining with a built-in 36” professional grill, dual wood-burning fireplaces with gas log options, and ample lighting and fans for summer enjoyment. The dream backyard also features an in-ground Gunite pool, luxury synthetic turf, and a black aluminum fence for privacy, providing direct access to a scenic nature trail with no neighboring homes behind. This home is designed for comfort and entertainment, making it a true sanctuary in the heart of nature, with direct access to over 20 miles of scenic nature trails just outside your door.
5 bedrooms | 4.5 bathrooms
4,402 square feet
2-car garage
1-golfcart garage
Media Room
Loft
Wine Cellar
Island with 2-full sized sinks
Custom Cabinetry
22-foot ceilings
Accordion Pella-clad door in the living room
Living room fireplace
Built-in 36” professional grill
Dual wood-burning fireplaces with gas log options
In-ground Gunite pool
Luxury synthetic turf
Black aluminum fence
Ample front + back porches for entertaining
Geothermal HVAC
EarthCraft Certified
2 Electric Car Charging Ports in Garage


.jpg)
%20(1).jpg)
.jpg)















