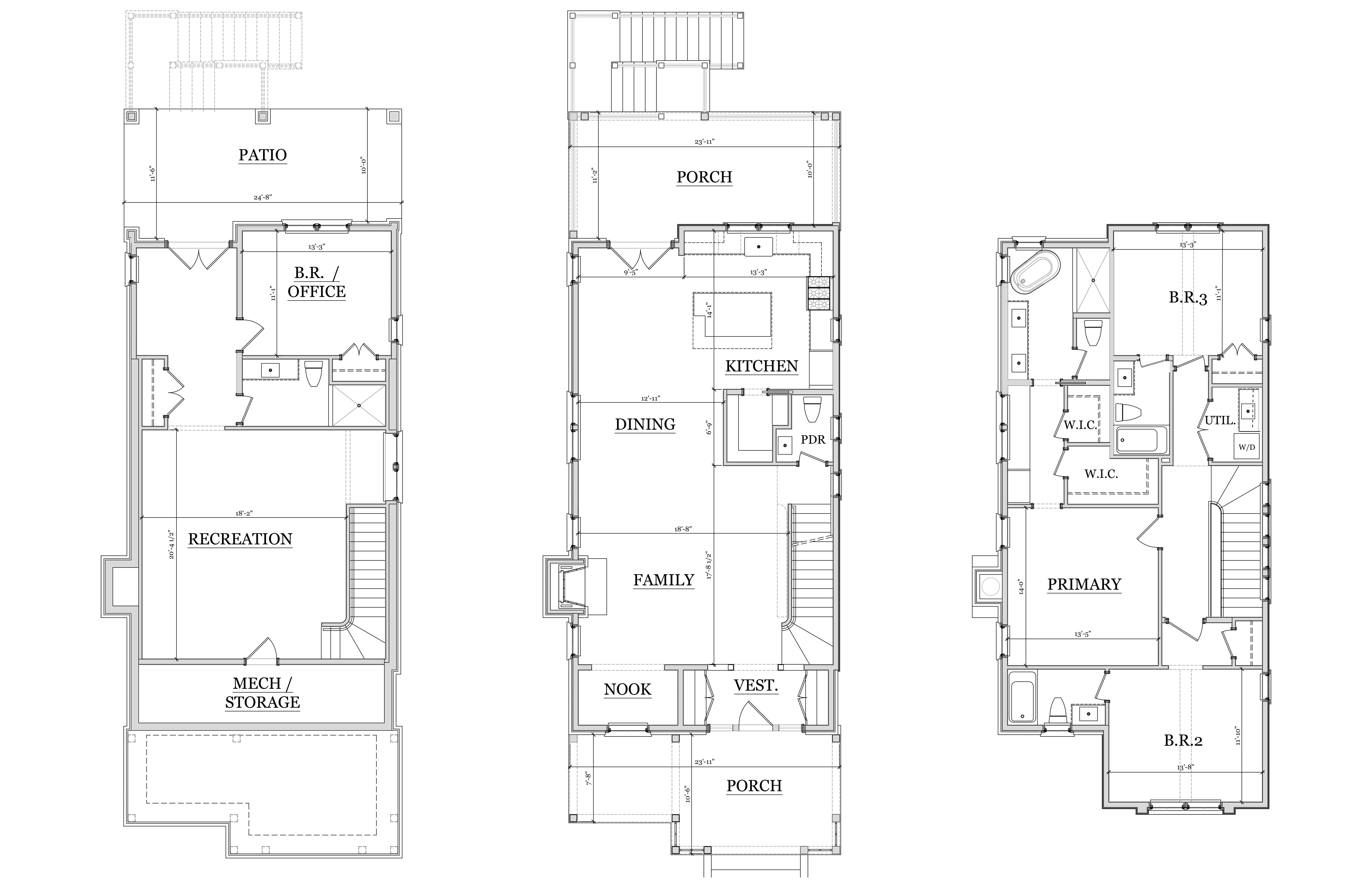
Located in the Spela Hamlet of Serenbe, this Victorian cottage offers charm and comfort in equal measure. The main level features an open floor plan with seamless flow between the living and dining areas, flanked by a welcoming front porch and a spacious back porch. Tucked away is a cozy reading nook—ideal for curling up with a good book. Upstairs, the primary bedroom is joined by two guest bedrooms, each with en-suite bathrooms for added privacy. The terrace level offers a spacious rec room for secondary living, plus a fourth guest bedroom. Come outside to a private back patio, perfect for entertaining guests year-round.
























